返回
房源详情
【多图】宝能中心写字楼出售,1680万,笋岗金融街 宝能中心 业主急卖,2万/平米,红本高层豪华装修
1680
  • 宝能中心
  • 精装修 (可分割)
  • 深圳宝能中心
  • 低区(0/43)
  • 不限
  • 乙级
  • 宽带,有线电视,水,电,电梯

房源描述

罗湖笋岗金融圈【宝能中心】
【项目位置】:深圳市罗湖区宝安北路与梅园路交汇东南
【占地面积】:4.5万㎡
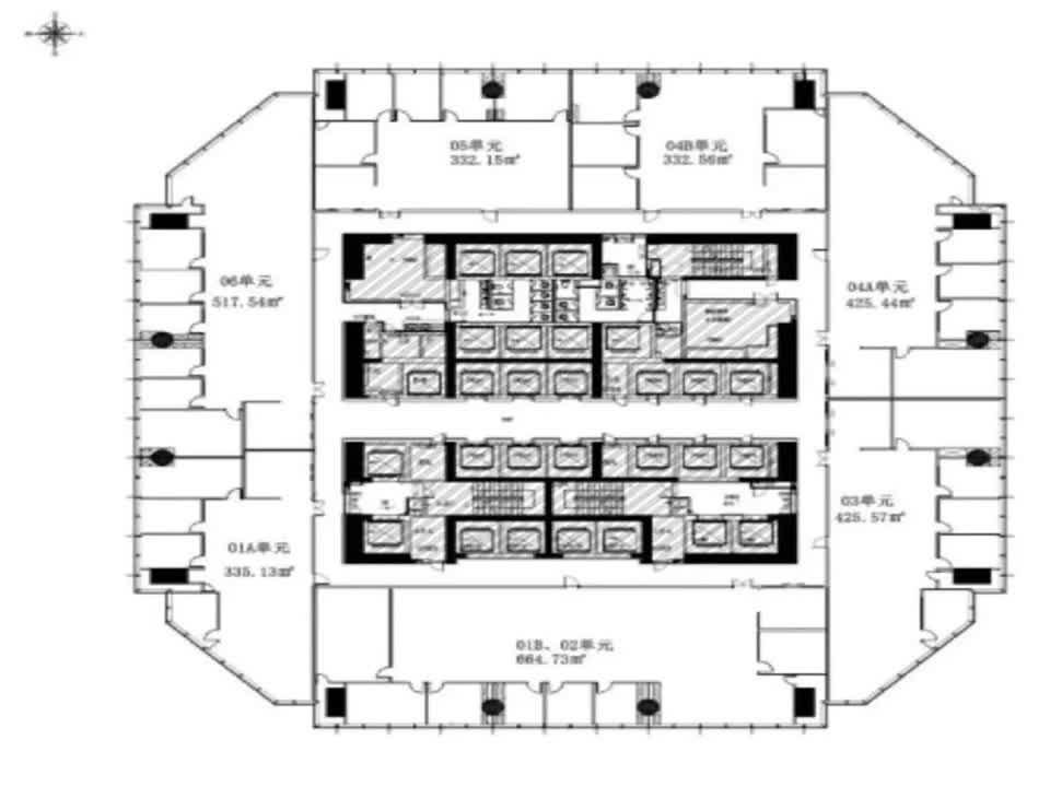
【面积】:823.39平米
【标准层面积】:2356平米
【使用率】:85%
【停车位】1374个【物业公司】:华润物业
【特色配备】:万象系、宝能空间
【其它】:宝中心地处罗湖旧改核心地段,周边品牌开发商汇集,带来的发展前景,便捷的交通7号线笋岗站,出门口就到项目,方便员工的通勤,方便客户的来访,品牌开发商的高品质高要求打造的产品,户型方正实用,门面大气,企业身份、实力的象征。
查看更多

小区配套

周边配套完善,附近有各种大型超市、新鲜蔬菜市场,满足附近居民生活所。

服务介绍

本人从事房地产多年,客户的满意是我的职业追求,我相信,拥有专业的知识及真诚的服务才能为客户找到满意房源。

交通出行

三大高铁/火车站:深圳火车站、深圳东站、深圳北站三大跨境口岸:罗湖莲塘口岸、文锦渡口岸、罗湖口岸主干道:宝安北路、红岭北路、北环大道高速路:清平高速,快速水官高速等

周边信息

  • 深圳宝能中心
  • 公交
  • 地铁
  • 教育
  • 医院
  • 银行
  • 娱乐
  • 购物
  • 餐饮
  • 健身

宝能中心(罗湖笋岗)