返回
房源详情
【多图】涵乐园二手房,1003万,便宜得有些夸张,急卖的心情却不夸张!失望过,它却让您开心过!
  • 300.9万
  • 南北
  • 45948.52元
  • 2002年
  • 低楼层(共10层)
  • 普通住宅
  • 精装修
  • 砖楼
  • 涵乐园
  • 水,电,暖气,有线电视,宽带,电梯,车位

房源描述

是为了逃避繁忙的生活是因为厌烦拥挤的交通或是想要躲开嘈杂的环境...在这个城市里寻找一个栖息之地安逸、快乐因为、家,就在这里......
房子优点:
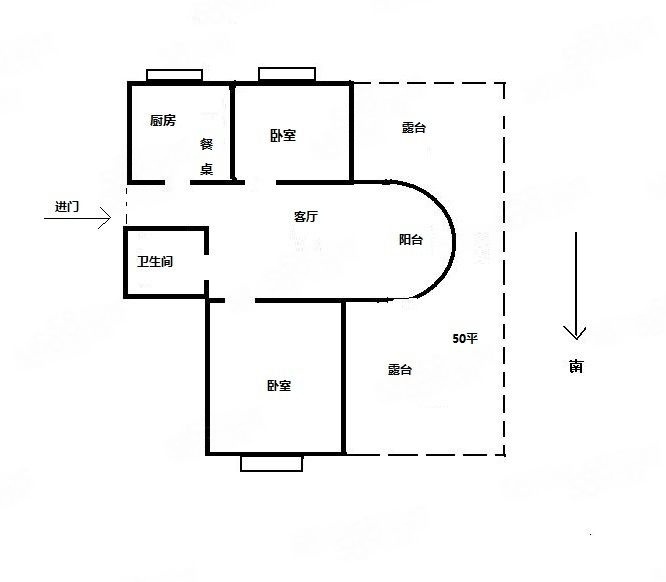
1、面积:99.39平方米,,朝向:南北通透。
2、装修:精装修,住的舒适。
3、,超低价。
4、格局合理。
优点总结:无论您是还是,这里都能满足您的需求,欢迎您亲自来看将为您提供的服务备注:我所发布的房源真实存在,价格是房东可出售的实价,现在网络上的虚假房源太多,好多房源严重便宜市场价,还有些房源您打电话过去,却被告知看不了房子的基本上都可断定为虚假房源,只是要获得一个客户电话,所以建议您慎重选择,不要盲目询问,找好房源,更要找对置业顾问!感谢您在百忙之中看完此贴,希望这些能给您有所帮助!美凯龙爱家周小宝竭诚为您服务!
《服务标准》:北京美凯龙爱家公司从事房产销售已经许多年之久,曾为多位房东和客户提供房产服务!本人本着真诚、实诚的服务标准为您提供房产服务。并且我深知不差价,让您以合理价格买到真正的好房子!如果这套不适合您,欢迎您点击我的头像进入店铺,定能找到您想要的房源……
查看更多

业主心态

1.业主因房子小了,人多住不下了,置换个三房,房子已经看好 诚意出售! 2.产权1人,产权清晰,无债务纠纷, 交易起来也方便, 3.

小区配套

小区居民素质高,配套设施齐全,地理位置好,交通便利。

服务介绍

1.本人周小宝从事地产行业工作7年多的时间,熟悉浦东板块!拥有丰富的经验,保护客户的资金安全,专业的律师团队,专业的谈判技巧。 2.为您选房陪您看房,为您筛选、议价全程协助签订(上海市正式买卖合同

税费信息

产权干净,税费清晰,欢迎来电咨询该房屋详情,静候您的来电!

周边信息

  • 张杨路1269弄
  • 公交
  • 地铁
  • 教育
  • 医院
  • 银行
  • 娱乐
  • 购物
  • 餐饮
  • 健身
公交/暂无资料轨道交通/6号线源深体育中心,6号线世纪大道,4号线世纪大道,9号线世纪大道,2号线世纪大道,6号线民生路,4号线浦电路,18号线民生路,18号线昌邑路,4号线浦东大道

涵乐园(浦东陆家嘴)

  • 18套
  • 19套
  • 普通住宅
  • 暂无资料
  • 暂无资料
  • 暂无资料
  • 暂无资料