返回
房源详情
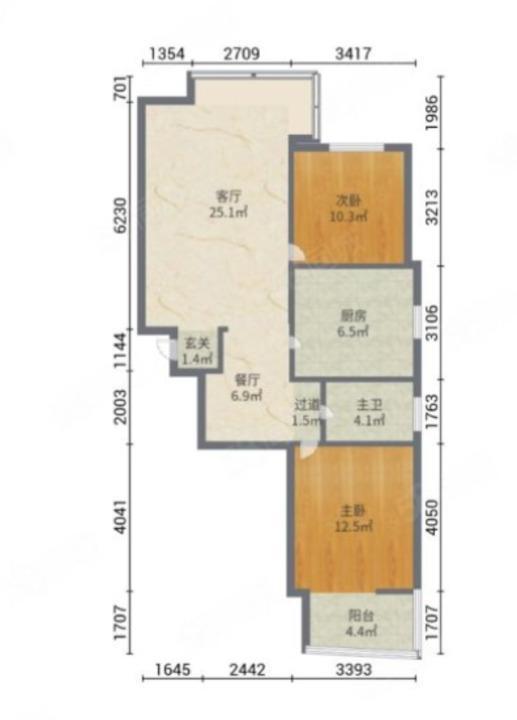
【多图】名门滨江苑二手房,1266万,源深南北通透普通住宅118.44平名门滨江苑难找房子
  • 379.8万
  • 南北
  • 57996.83元
  • 2003年
  • 低楼层(共31层)
  • 普通住宅
  • 精装修
  • 砖楼
  • 名门滨江苑
  • 水,电,暖气,有线电视,宽带,电梯,车位

房源描述

美凯龙爱家圆"您“家的梦


1、朝向:南北通透。户型很好,价格也很实惠



2、小区环境好,房子的空间距大,绿化面积广



3、楼层,采光相当的好,住房率很高,房间都很大



温馨提示:您所看到的价格全为实价,为了省去您不必要的麻烦,倘若发现相同房源更低或者超低价格时,还希望您能三思而后行,这里的房子只为有需求的您准备



十年铸就辉煌,新的起航,心的服务

查看更多

业主心态

【1】业主有诚意卖房,只要有时间就能给客户提供看房时间,足以见其诚意。 【2】如果您看好房子,不管您想谈多少,我都可以帮您约到业主让你们见面聊。 【3】房东现在想回笼资金给用,买房比较诚意比较急,开价即谈 【4】此房由我们专人维护,帮他出售,要看房找我准没错。 【5】挂价都是统一的,不用去相信低的价格,只是为了吸引您,但是事实是价格确实有空间,只要看的中,我就能拿到你意想不到的价格。

小区配套

小区居民素质高,配套设施齐全,地理位置好,交通便利。

服务介绍

房屋秉持着 真服务 说真话 真服务的原则尽心为您服务。 房屋一诺千金,一言九鼎,为您购房保驾护航 (一)九鼎服务 1、透明 超收退还 2、房屋托付 超时赔付 3、不吃差价

税费信息

产权干净,税费清晰,欢迎来电咨询该房屋详情,静候您的来电!

周边信息

  • 浦东大道1093弄
  • 公交
  • 地铁
  • 教育
  • 医院
  • 银行
  • 娱乐
  • 购物
  • 餐饮
  • 健身
公交/暂无资料轨道交通/18号线昌邑路,4号线浦东大道,6号线源深体育中心,18号线丹阳路,6号线民生路,18号线民生路,4号线世纪大道,6号线世纪大道,9号线世纪大道,2号线世纪大道

名门滨江苑(浦东源深)

  • 5套
  • 11套
  • 普通住宅
  • 暂无资料
  • 暂无资料
  • 暂无资料
  • 暂无资料