返回
房源详情
【多图】金机大厦(公寓住宅)租房,3900元/月,整租l鲁迅,精装一房一厅,房子干净,南北透,看房随时
3900元/月
40
  • 整租
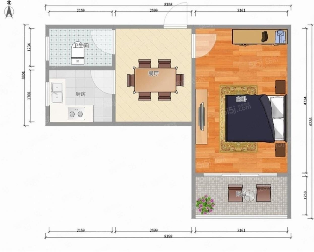
  • 1室1厅1厨1卫1阳台
  • 朝南
  • 精装修
  • 高楼层(5/6)
  • 金机大厦(公寓住宅)(虹口鲁迅公园)
  • 水,电,暖气,有线电视,宽带,车位,电梯,电梯,电梯,电梯

房源描述

6大理由
1:地理位置优越。
2:公交地铁十分方便。出行方便,上下班方便。
3:购物方便,节省您的宝贵时间。
4:小区绿化率高。环境优美。宁静和谐,好环境总会给人带来好心情。
5:此房干净整洁,温馨舒适,独立厨卫,就等着您的拎包入住。
6:家电齐全,宽敞明亮,布局大方,采光非常好。
选择家 选择5爱5家
让我们与您共建美好家园
我始终坚信:
一切为了给您找到一个温馨的家!
我用心去服务,您用心去感受
欢迎随时来电咨询,经纪人黄其意,竭诚为您服务。
查看更多

周边信息

  • 金机大厦(公寓住宅)-横浜路123弄
  • 公交
  • 地铁
  • 教育
  • 医院
  • 银行
  • 娱乐
  • 购物
  • 餐饮
  • 健身
公交/暂无资料轨道交通/3号线东宝兴路,8号线虹口足球场,3号线虹口足球场,8号线西藏北路,10号线海伦路,4号线海伦路,3号线宝山路,4号线宝山路,10号线四川北路,10号线邮电新村

金机大厦(公寓住宅)(虹口鲁迅公园)

  • 1套
  • 普通住宅
  • 暂无资料
  • 暂无资料
  • 暂无资料
  • 暂无资料