返回
房源详情
800
元/月
【多图】锦邻缘租房,800元/月,民用水电三室合租苏福大润发 锦邻缘 桐径公园地铁口亿象城
800
元/月
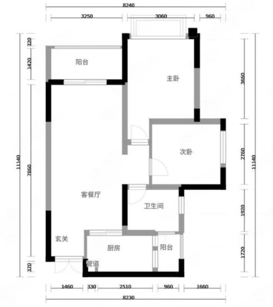
3室1厅1卫
78
㎡
视频
图片
1
/
1
租房方式
合租
户型
3室1厅1厨1卫1阳台(次卧)
朝向
朝北
装修
精装修
楼层
低楼层(2/6)
小区名称
锦邻缘(沧浪吴门桥)
配套设施
水,电,煤气/天然气,有线电视,宽带,车位,电梯,电梯,电梯,电梯,电梯
房源描述
民用水电,随时入住,靠近地铁
有车库好充电,出行方便,
二、房屋费用情况:
1.电费:因本小区属于住宅区民用电按国家规定一阶梯
峰0.5583元谷0.3583元阶梯不同费用不同一切按国家规定。
2.水费:水每吨3.5元。
3.燃气费:燃气2.7元一立方。
查看更多
周边信息
地址
解放东路165号
交通
公交
地铁
教育
医院
银行
娱乐
购物
餐饮
健身
锦邻缘(沧浪吴门桥)
租房
22套
物业类型
复式
返回
视频分享-选择图片
室内图
房型图
小区图
最多选择12张照片,已选择
0
张
确定
返回
视频分享-复制文案
民用水电三室合租苏福大润发 锦邻缘 桐径公园地铁口亿象城
小区:
锦邻缘
户型:
3室1厅1卫
楼层:
低楼层(2/6)
面积:
78㎡
价格:
800元/月
联系人:
李欣
联系电话:
18112631146
添加音乐
音乐1
音乐2
音乐3
音乐4
合成视频,分享朋友圈
正在合成视频
返回
长图分享-选择图片
室内图
房型图
小区图
请选择需要生成的长图图片 (为了分享朋友圈被预览时的美观度,建议您选择 8 张图片)
确定
返回
长图分享-编辑文案
不添加文案,生成长图
添加文案,生成长图
正在合成长图