返回
房源详情
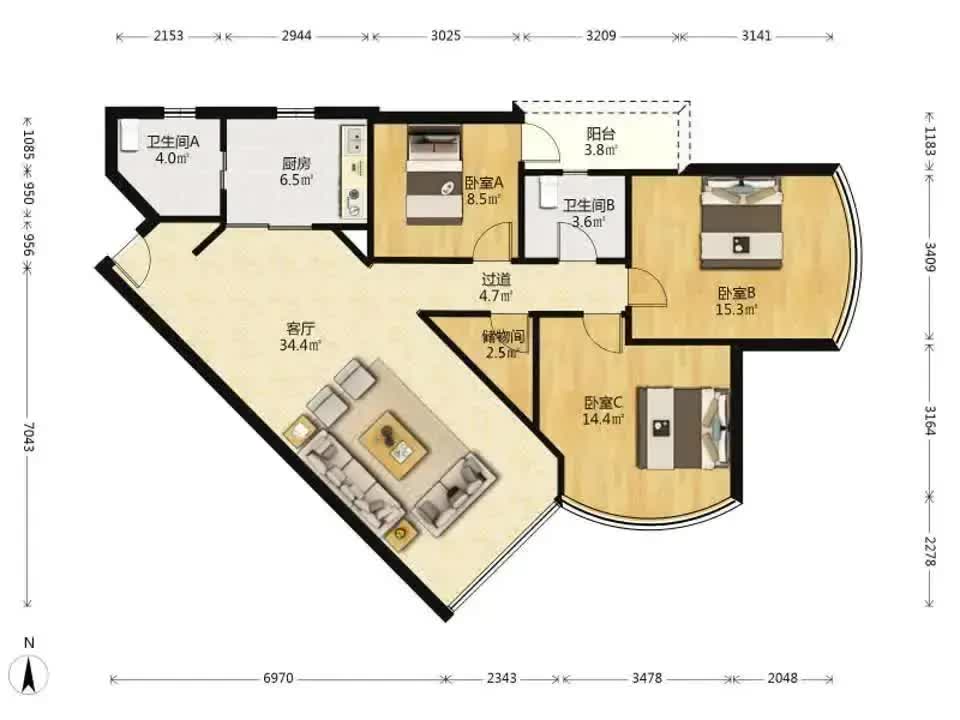
【多图】帝景苑二手房,630万,芳草园 东方之珠 金海花园 帝景苑 南向大三房花园小区双地铁
  • 189万
  • 朝东
  • 28860.98元
  • 2004年
  • 高楼层(共31层)
  • 普通住宅
  • 精装修
  • 砖楼
  • 帝景苑
  • 水,电,暖气,有线电视,宽带,电梯,车位

房源描述

帝景苑:、 位于天河北路与龙口西交界处,全封闭管理。金碧辉煌的标志,在绿树红楼间注目;无论是大堂,还是电梯间,金色光芒无处不在,每处皆及遮不住的贵气!小区配套设施完善,网球场、园林体育休闲地带,敲打您每一处运动的神经;饮食娱乐,处处都露显赫身份;欧陆情怀zzzzzzz水景公园,晨风中、夕阳下闲暇漫步,美满地共享天伦! 个人点评: 电梯房,图片,3室2厅2卫。安静舒适,厅大房间大,看房子方便,通风采光好。业主诚心出售,帝景苑周边有芳草园,希尔顿阳光,伊顿18等小区为邻的r
查看更多

业主心态

业主诚心出售此房,没有产权纠纷,业主素质较高,房价合理且可议价,欢迎随时看房

小区配套

小区地理位置好,配套设施齐全,交通便利,居民素质高。

服务介绍

本人从事销售9年多,对周边的房屋户型价格了解,一定会帮你买到性价比 的房子

税费信息

产权干净,税费清晰,欢迎来电咨询该房屋详情,静候您的来电!

周边信息

  • 天河北路550-590号
  • 公交
  • 地铁
  • 教育
  • 医院
  • 银行
  • 娱乐
  • 购物
  • 餐饮
  • 健身
公交/暂无资料轨道交通/暂无资料

帝景苑(天河天河北)

  • 43套
  • 23套
  • 普通住宅
  • 30.0
  • 暂无资料
  • 暂无资料
  • 暂无资料