返回
房源详情
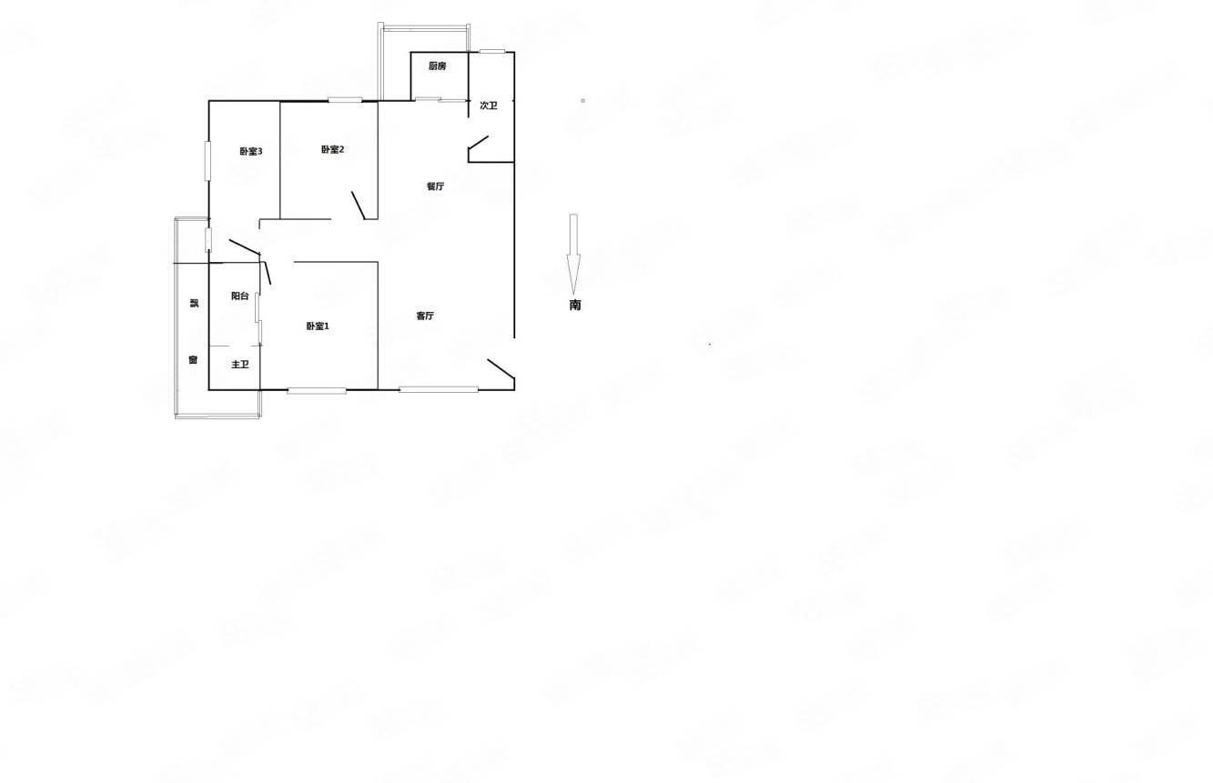
【多图】水均大街小区二手房,458万,水均大街 靓靓楼层 精装三房 单边位 物业随时看房
  • 137.4万
  • 南北
  • 20981.48元
  • 1994年
  • 中楼层(共7层)
  • 普通住宅
  • 精装修
  • 砖楼
  • 水均大街小区
  • 水,电,暖气,有线电视,宽带,电梯,车位

房源描述

该房源本人已亲自到现场勘察,房源保真,业主所放盘价格实在,看楼提前预约 1.物业状况:房屋间隔方正实用,装修简洁干净,实用方正,整体效果不错。 2.物业税收:房屋证过五年不 3.业主状况:业主本人因为置换需要,看中可商议。 4.产权状况:业主物业产权清晰,交易安全有保障
查看更多

服务介绍

对于您的到来,本人深感荣幸。本人从事房地产行业多年,尤其在东山口板块已沉淀数载,是公司的资深客户经理。本人服务宗旨是让客户得到满意的服务,这辈子只需找对一个房地产经纪人。

周边信息

  • 水均大街
  • 公交
  • 地铁
  • 教育
  • 医院
  • 银行
  • 娱乐
  • 购物
  • 餐饮
  • 健身
公交/暂无资料轨道交通/暂无资料

水均大街小区(越秀东风东)

  • 22套
  • 28套
  • 普通住宅
  • 35.0
  • 暂无资料
  • 暂无资料
  • 暂无资料