返回
房源详情
4600
元/月
【多图】卫生厅宿舍租房,4600元/月,农讲所地铁 仓边路大院 原装电梯两房 随时看房
4600
元/月
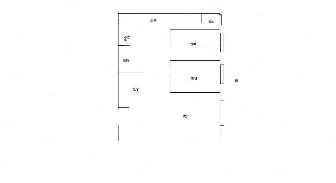
2室2厅1卫
112.5
㎡
全景
图片
1
/
1
租房方式
整租
户型
2室2厅1厨1卫1阳台
朝向
朝西
装修
一般装修
楼层
高楼层(15/19)
小区名称
卫生厅宿舍(越秀大沙头)
配套设施
水,电,暖气,有线电视,宽带,电梯,车位
房源描述
感谢您的到来,本人内房源都是,照片为实地拍摄。
该物业离农讲所地铁站近,电梯高层,家私家电齐全,通风采光好,随时可以看房。
查看更多
周边信息
地址
仓边路35号
交通
公交
地铁
教育
医院
银行
娱乐
购物
餐饮
健身
公交/暂无资料轨道交通/暂无资料
卫生厅宿舍(越秀大沙头)
租房
1套
物业类型
普通住宅
绿化率
暂无资料
物业费
暂无资料
物业公司
暂无资料
开发商
暂无资料
返回
视频分享-选择图片
室内图
房型图
小区图
最多选择12张照片,已选择
0
张
确定
返回
视频分享-复制文案
农讲所地铁 仓边路大院 原装电梯两房 随时看房
小区:
卫生厅宿舍
户型:
2室2厅1卫
楼层:
高楼层(15/19)
面积:
112.5㎡
价格:
4600元/月
联系人:
谢翔
联系电话:
18620097501
添加音乐
音乐1
音乐2
音乐3
音乐4
合成视频,分享朋友圈
正在合成视频
返回
长图分享-选择图片
室内图
房型图
小区图
请选择需要生成的长图图片 (为了分享朋友圈被预览时的美观度,建议您选择 8 张图片)
确定
返回
长图分享-编辑文案
不添加文案,生成长图
添加文案,生成长图
正在合成长图