返回
房源详情
5500
元/月
【多图】江南府租房,5500元/月,3月底可以住明厨明卫 精装全齐 采光视野好 有车位 柏林郡
5500
元/月
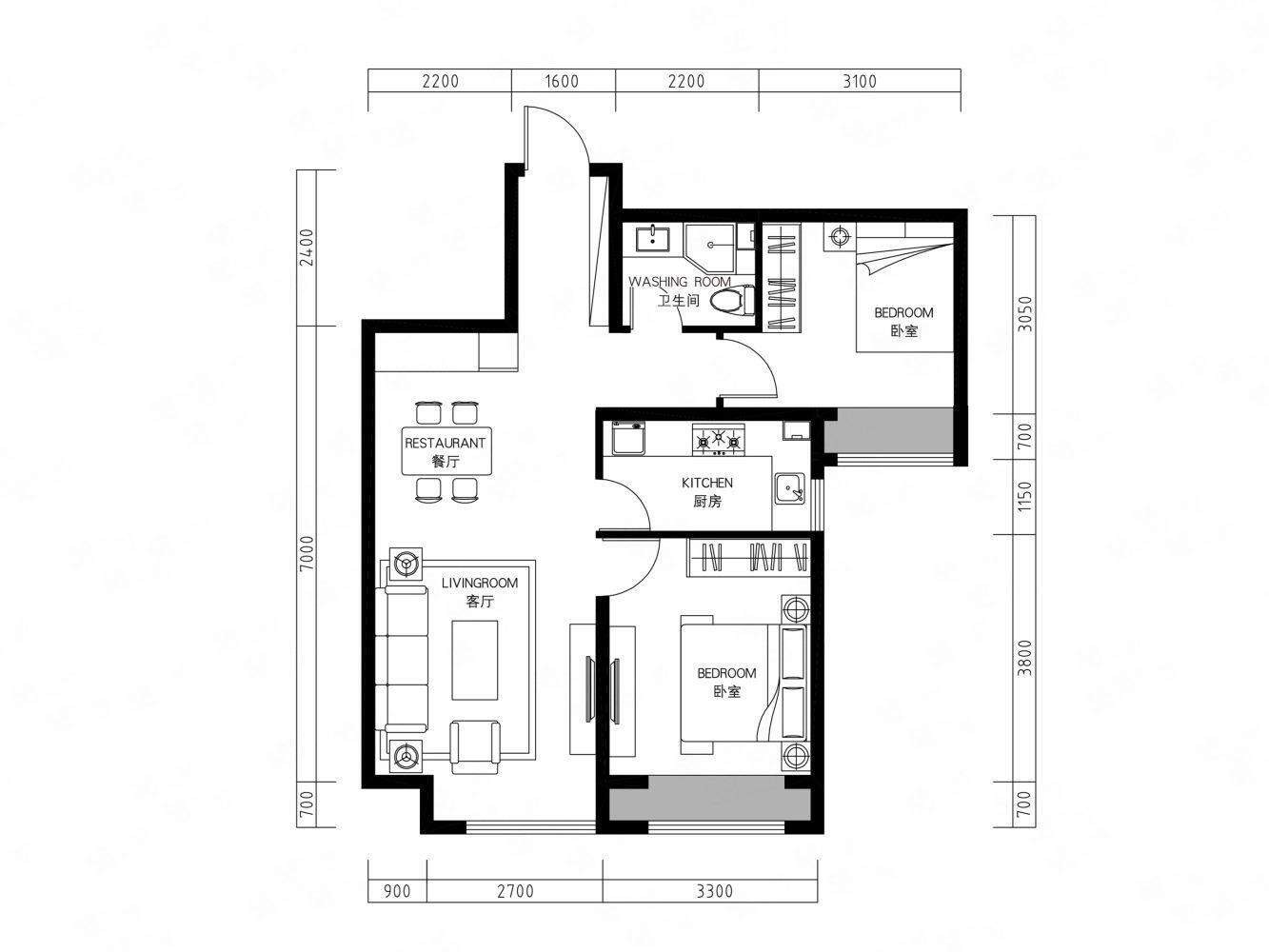
2室2厅1卫
84
㎡
图片
1
/
1
租房方式
整租
户型
2室2厅1厨1卫1阳台
朝向
朝南
装修
精装修
楼层
高楼层(22/27)
小区名称
江南府(朝阳十八里店)
配套设施
水,电,暖气,有线电视,宽带,车位,电梯,电梯,电梯
房源描述
室内精装修,家具家电齐全,采光还可以,交通方便,出门即是公交站,有意者可以联系,随时看房,欢迎您来电咨询。
爱我家园王永帅,了解更多请联系:王永帅!爱我家园为您提供服务保证!
查看更多
周边信息
地址
红坊路6号
交通
公交
地铁
教育
医院
银行
娱乐
购物
餐饮
健身
公交/暂无资料轨道交通/暂无资料
江南府(朝阳十八里店)
二手房
23套
租房
68套
物业类型
普通住宅
绿化率
30.0
物业费
暂无资料
物业公司
暂无资料
开发商
暂无资料
返回
视频分享-选择图片
室内图
房型图
小区图
最多选择12张照片,已选择
0
张
确定
返回
视频分享-复制文案
3月底可以住明厨明卫 精装全齐 采光视野好 有车位 柏林郡
小区:
江南府
户型:
2室2厅1卫
楼层:
高楼层(22/27)
面积:
84㎡
价格:
5500元/月
联系人:
王永帅
联系电话:
15011218838
添加音乐
音乐1
音乐2
音乐3
音乐4
合成视频,分享朋友圈
正在合成视频
返回
长图分享-选择图片
室内图
房型图
小区图
请选择需要生成的长图图片 (为了分享朋友圈被预览时的美观度,建议您选择 8 张图片)
确定
返回
长图分享-编辑文案
不添加文案,生成长图
添加文案,生成长图
正在合成长图